Can Guillem i na Cati, Montuïri
TEd’A arquitectes- Tipo Vivienda Casa
- Material Piedra Hormigón Marés
- Ciudad Montuïri (Mallorca)
- País España
- Fotografía Luis Díaz Díaz
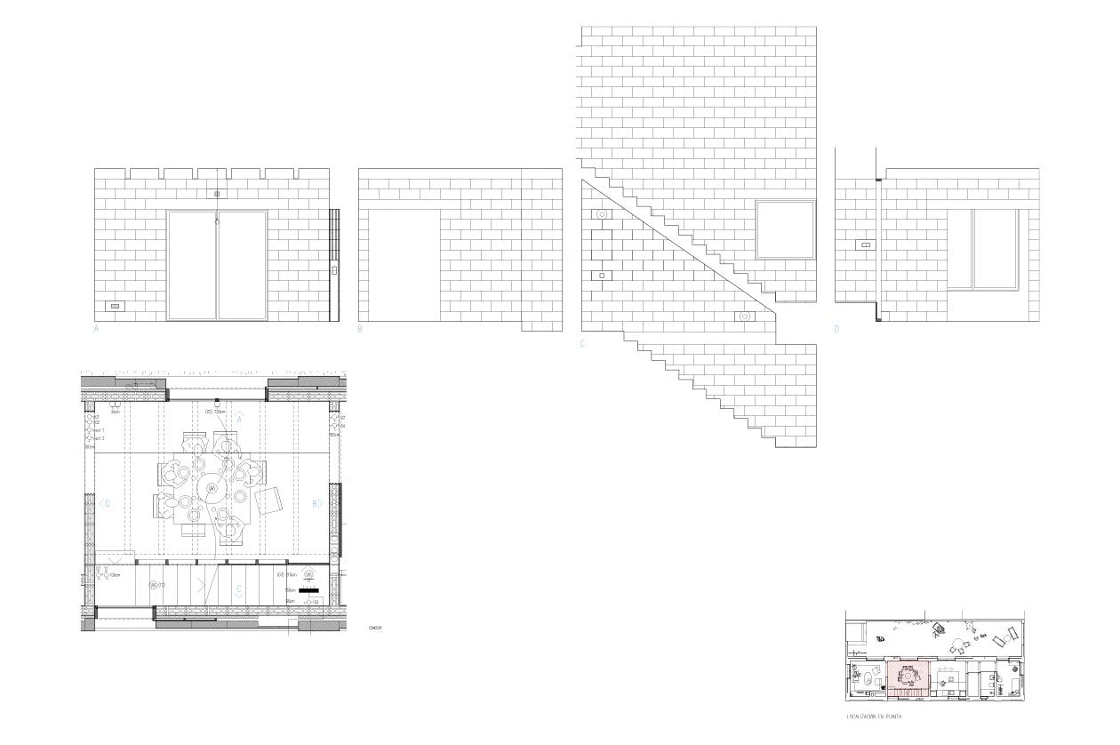
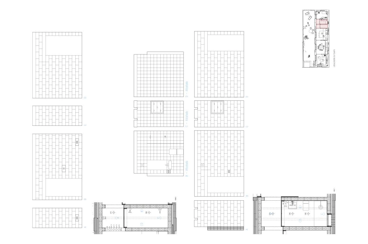
La vivienda ocupa toda la superficie de la parcela. La casa —que se coloca en el sentido longitudinal del solar— y el patio son complementarios; gracias a esta distribución, se libera un patio-calle entre la nueva construcción y la residencia contigua.
Los interiores se delimitan por medio de muros de carga ejecutados con bloques de hormigón vibrado visto, al igual que las viguetas y dinteles. Por otro lado, la hoja exterior de la fachada de alta inercia intercala piezas de marés de 15 y 20cm de grosor.

























Can Guillem i na Cati, Montuïri (Mallorca)
Cliente Cliente
Guillem Nicolau, Cati Font
Arquitectos Architects
Irene Pérez, Jaume Mayol (TEd’A arquitectes)
Aparejador Quantity surveyor
José Luis Mateos
Colaboradores Collaborators
Sergi Altarriba (estructura structure); Toni Ramis; Tomeu Mateu; Giovani Fenoglio
Fotografía Photographs
TEd’A arquitectes