Campus Repsol
Rafael de La-Hoz- Tipo Comercial / Oficina
- Material Metal Vidrio
- Fecha 2013 - 2014
- Ciudad Madrid
- País España
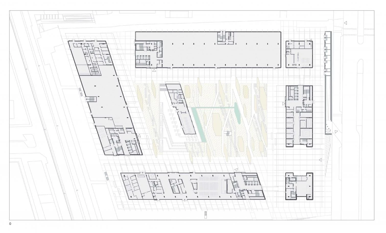
En la madrileña zona de Méndez Álvaro, una céntrica área industrial en pleno desarrollo situada en el sur de la ciudad, se levanta el campus empresarial de la multinacional española Repsol, un complejo integrado por cuatro edificios distribuidos —como en el claustro de un monasterio—, en torno a una gran plaza interior, una gran zona verde con espacios compartidos y zonas comunes ajardinadas, que constituye uno de los puntos clave del proyecto.

Integrado por cuatro edificios en torno a un patio central ajardinado, el nuevo campus empresarial madrileño de Repsol tiene capacidad para albergar a 4.000 trabajadores, en una superficie de casi 124.000 metros cuadrados.
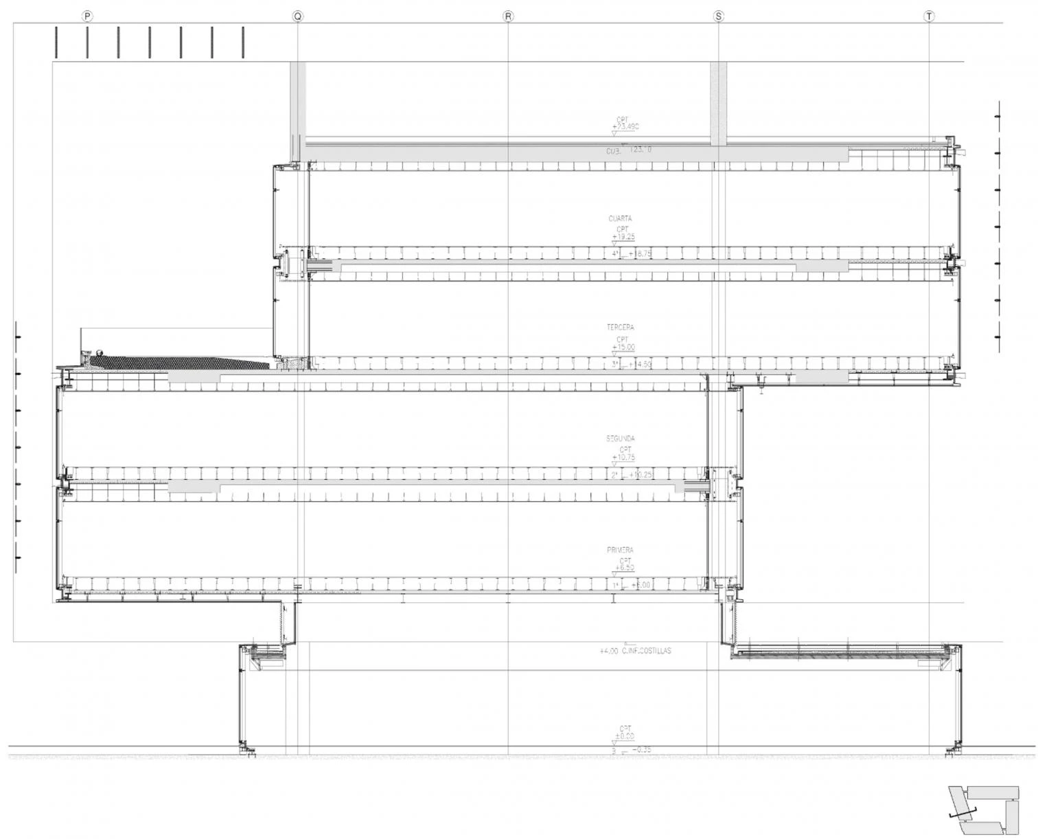
Con una expresiva volumetría, el edificio consta de una planta baja y cuatro superiores, cada una de ellas a modo de caja de cristal longitudinal. Las oficinas, distribuidas en las cuatro plantas superiores y desvinculadas visualmente de la planta baja, están concebidas como paralelepípedos que atraviesan longitudinalmente una sucesión de pórticos dispuestos en perpendicular. Las cuatro plantas se aglutinan de dos en dos produciéndose en alzado un desplazamiento entre sí en el sentido transversal. Como resultado se crean unos espacios de transición dentro de la envolvente de los pórticos que enriquece espacialmente la percepción hacia el exterior.


La exteriorización de parte de la estructura permite liberar el interior, creando plantas diáfanas de distribución flexible; los cuatro edificios están comunicados entre sí a través de puentes de cuatro alturas.


Los núcleos de comunicación vertical están ubicados en los extremos de cada pastilla con el fin de liberar al máximo el espacio de oficinas. Unos núcleos secundarios de aseos se colocan en la zona central de la planta a modo de bisagra para articular el quiebro que se produce. Con una gran profundidad lograda en cada planta, soportada en dos líneas de pilares, una de ellas intermedia y visible, el espacio diáfano obtenido consigue, además de una magnífica iluminación natural, la máxima flexibilidad en la distribución de los espacios, de los puestos de trabajo y de la habilitación futura.
Las fachadas se componen de unos paneles de vidrio de grandes dimensiones, que se adaptan a la estructura de los pórticos sin necesidad de carpintería vertical intermedia creando la sensación en el usuario de estar conectado con el exterior.

Las cuatro plantas de oficinas se distribuyen en cajas enmarcadas por costillas estructurales; el desplazamiento de las cajas entre sí genera terrazas bajo las costillas que aportan dinamismo a la imagen del edificio.




Cada costilla metálica está formada por diez piezas soldadas en obra, cuyas uniones se refuerzan mediante barras rigidizadoras. Los paneles de vidrio se atan a las costillas con una pieza que permite ligeros movimientos.


El nuevo campus ha obtenido la calificación medioambiental Leed Platino —Líder en Eficiencia Energética y Diseño Sostenible— e incluye todas las variables medioambientales necesarias: calificación energética, uso de energía renovable (1.700 metros cuadrados de paneles fotovoltaicos), reutilización de aguas pluviales, selección de plantas autóctonas de bajo mantenimiento, mínima contaminación lumínica, empleo de un alto porcentaje de materiales de construcción reciclables y renovables (por ejemplo: utilización de madera certificada), fomento del tráfico de baja emisión — aparcamiento para bicicletas, uso de coches eléctricos, híbridos y de alta ocupación—, etc.


Cliente Client
Repsol
Arquitecto Architect
Rafael de La-Hoz Castanys
Colaboradores Collaborators
Jesús Román, Concha Peña, Marcus Lassan, Carolina Fernández (directores de proyecto project managers); Hugo Berenguer (director de diseño design manager); Conchi Cobo, Guillermo Vidal, Bodo Schumacher, Laura Díaz, Hubert Lionnez, María Millán, Guillermo Cervantes, Beatriz Heras, Zaloa Mayor, María Martínez, Miguel García, Irene Zurdo y María Iglesias (equipo de proyecto project team); Alberto González, Amaya Díaz de Cerio, Mercedes Esteban y José Luis Gonzalo (arquitectos técnicos quantity surveyors); Elena López de Meneses, Loreto Muñoz-Aycuens, Adriana Rodríguez y ANER —Aguirre Newman + Enrica Rosellini— (interiorismo interiors); Luis Muñoz y Daniel Roris (infografías infographics); Víctor Coronel, Fernando Mont (maquetas models)
Consultores Consultants
NB 35 (estructuras structural engineering); Pgi Úrculo (ingeniería de instalaciones mechanical engineering); Latz+Partner con with Rafael de La-Hoz: Javier Monge, Felix Metzler, Dörte Dannemann, Daniela Strasinsky, Thibault Le Marie (paisajismo landscape)
Contratista Contractor
SACYR S.A.U.
Superficie construida Floor area
123.400 m² (total)
21.000 m² (superficie de urbanización landscaping)
66.803 m² (superficie construida total sobre rasante floor area above ground)
Presupuesto Budget
94.782.400 euros (PEM)
Fotos Photos
Alfonso Quiroga, Repsol