Bloque residencial, La Línea
Rafael Otero- Tipo Vivienda Colectiva
- Fecha 2000
- Ciudad La Línea (Cádiz)
- País España
- Fotografía Hisao Suzuki
En el extremo sur de la península, a tan sólo una manzana de la bahía de Algeciras, un solar residual largo tiempo usado como aparcamiento fue el lugar elegido para levantar un bloque de viviendas sociales. Enfrentada en diagonal al patio de un colegio, la actuación apuesta por un volumen de contornos rotundos capaz de afirmar su autonomía frente a los conjuntos residenciales de bloque abierto que salpican los alrededores. Con una profundidad de parcela demasiado grande como para edificar una sola crujía, el proyecto se decanta por una tipología derivada del bloque en H, en la que dos pastillas estrechas y paralelas aparecen unidas por pasarelas que se suceden al ritmo de los núcleos de comunicación.



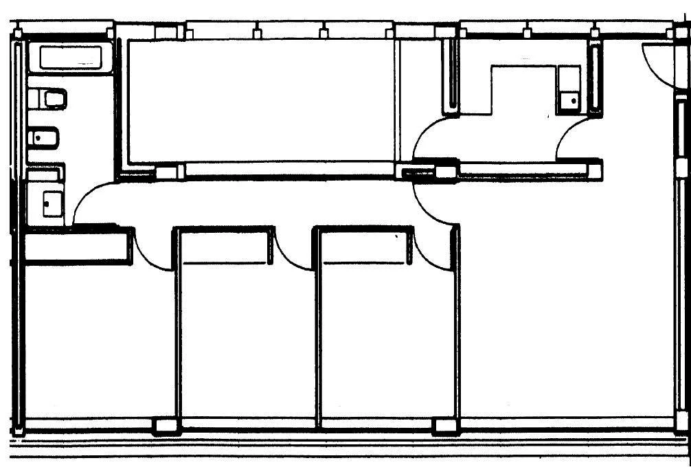
Viviendas tipo

Partiendo de una tipología derivada del bloque en H, las viviendas abren la zona de servicio al patio longitudinal, y reservan la fachada para las piezas nobles, agrupadas tras un ventanal que obvia las diferencias entre ellas.
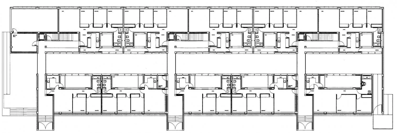
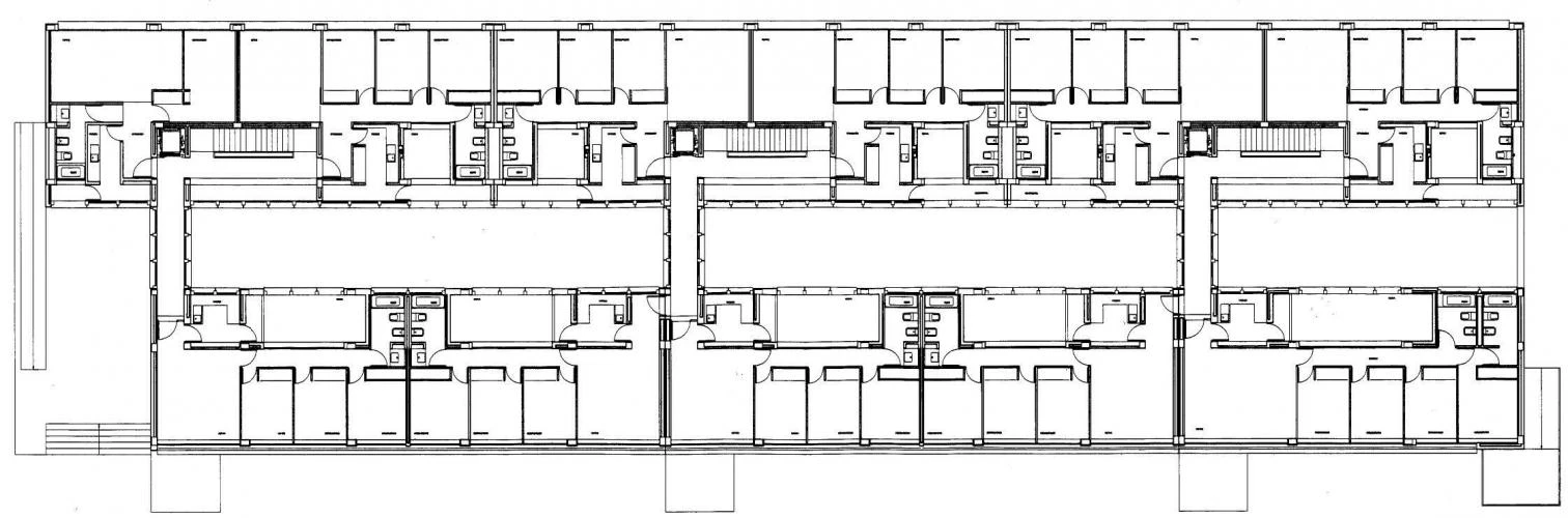
Frente a las restricciones impuestas por la normativa y el presupuesto, la manzana única y cerrada así definida se alía con la fuerte luz del sur para trascender desde la nitidez de sus aristas la presencia anónima de promociones vecinas. El quiebro de la calle Ribadeo en su aproximación al mar inspira el retranqueo del testero oeste, permitiendo ver desde la calle el vacío longitudinal que vertebra el bloque. En forma de cajones que sobresalen de la alineación de la fachada, los portales definen una banda de paso a cierta distancia de los apartamentos de planta baja, salvaguardando su intimidad y potenciando el juego de luces y sombras que idenvtifica la actuación. Su ritmo se corresponde con el de los tres núcleos de escaleras y ascensores situados en la crujía norte que estructuran el bloque. Atendiendo más a la dualidad calle-patio que a la orientación, las 43 viviendas de que consta el edificio ordenan sus salones y dormitorios a lo largo del perímetro, volcando al interior los aseos y las cocinas. Unos patios adicionales —adosados a las fachadas que delimitan el vacío interno— introducen luz natural tanto a la zona de servicio como al pasillo y al vestíbulo, potenciando la ventilación cruzada imprescindible en una construcción expuesta a un clima caluroso y extremo.



Planta baja / Planta tipo

Los alzados apoyan desde su composición las líneas contundentes del prisma. Tanto a la calle como al patio, una sucesión de ventanales horizontales desdibuja los pormenores del programa doméstico, obviando las diferencias de tamaño entre apartamentos. Para evitar vistas inoportunas entre viviendas, las ventanas de los patios se ocultan tras lamas de hormigón gris oscuro, material también elegido para alféizares y dinteles; con enfoscado blanco y carpinterías de aluminio, el cromatismo se reduce a un mínimo, dejando que el sol y la sombra sean los protagonistas de esta escultura habitable.





Cliente Client
Junta de Andalucía
Arquitecto Architect
Rafael Otero
Colaborador Collaborator
Francisco Alcoba (aparejador quantity surveyor)
Contratista Contractor
Perfesan
Fotos Photos
Hisao Suzuki