Biblioteca universitaria, Tarragona
Martínez Lapeña & Elías Torres- Tipo Biblioteca Universidad
- Fecha 2003
- Ciudad Tarragona
- País España
- Fotografía Lourdes Jansana
En el norte de la ciudad de Tarragona, el campus de Sant Pere de Sescelades amplía sus instalaciones consolidando la presencia de la Universidad Rovira i Virgili en la capital, donde cuenta ya con ocho centros académicos —además de otros dos en Reus y uno en Vilaseca—. Fundada en 1991, esta institución pública encuentra en Sescelades un entorno de fácil acceso desde el casco urbano —la avenida de Andorra conecta en línea recta la plaza Imperial Tarraco con la entrada del campus—, y alberga facultades de letras y de ciencias, además de un par de edificios administrativos. La nueva biblioteca comparte con otros volúmenes, en proyecto o en ejecución, una manzana de 150 x 210 metros, cuyo centro aloja una plaza concebida como espacio de relación para los alumnos y vestíbulo exterior de los edificios de su contorno.


En un campus todavía sin concluir, las estancias de la nueva biblioteca se alojan en un prisma compacto de hormigón sensible a la luz: tres de las cuatro fachadas incorporan mecanismos de protección solar.

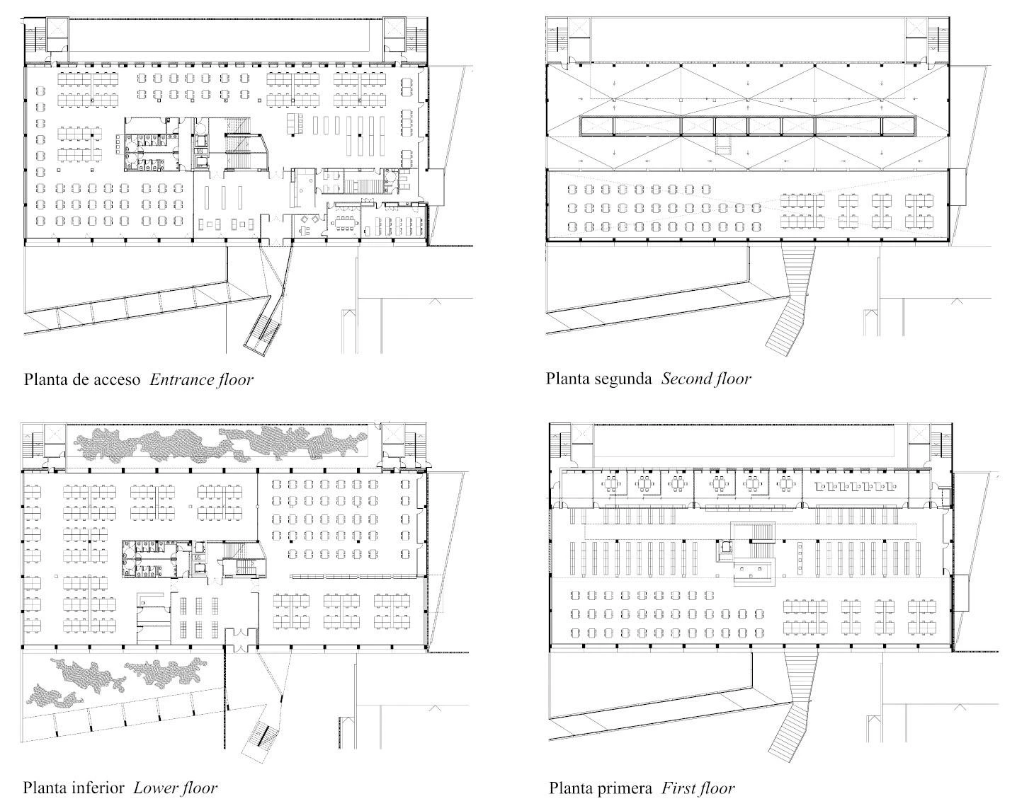
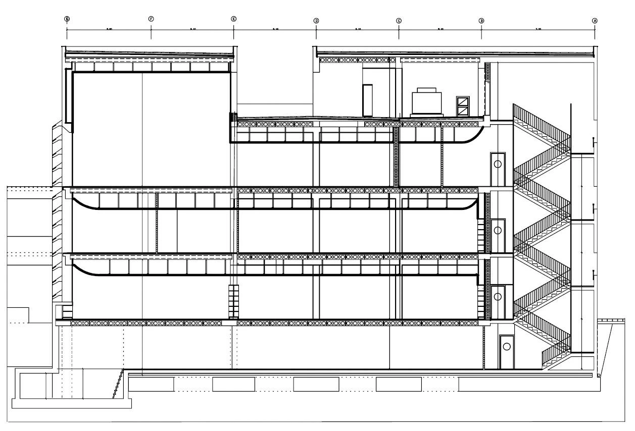
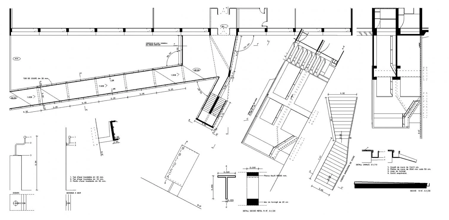
La construcción de un prisma compacto y de escaso volumen se llevó a cabo precisamente para no restar prestancia a las piezas vecinas. Constituyendo las ideas centrales del proyecto, la máxima flexibilidad en la utilización de los espacios y la entrada de luz natural determinan tanto la organización interna de la biblioteca como su apariencia exterior. La planta de acceso se desarrolla en un nivel intermedio, que salva la diferencia de cotas entre las distintas caras del prisma: una escultórica escalera exenta de hormigón, que une su recorrido al de una rampa elevada sobre pilotis, penetra en la fachada sur protegida por una marquesina de cobre, conduciendo a los alumnos hasta el vestíbulo. Las aulas de estudio e informática ocupan este nivel y el inferior, mientras la sala de lectura —un espacio a doble altura, libre de compartimentaciones y con huecos en tres de las caras— se sitúa en la planta superior. Los paramentos incorporan un zócalo de 1,5 metros revestido con materiales de fácil mantenimiento (madera o cerámica), mientras el resto se ha enlucido y pintado. Falsos techos de alta absorción acústica garantizan un ambiente silencioso.

La sala de lectura, organizada en una planta diáfana de doble altura, recibe luz exterior por medio de los ventanales que envuelven sus caras. Un lucernario garantiza la iluminación adecuada en el centro de la estancia.

Todas las fachadas, a excepción de la que se orienta al norte, controlan el grado de soleamiento: en la cara sur, lamas horizontales de hormigón blanco evitan en los tres niveles interiores la incidencia directa del sol; en el costado oriental, los generosos huecos se protegen gracias a una posición retranqueada respecto al plano de fachada; en el flanco occidental, un único hueco filtra la luz mediante lamas verticales. Un lucernario en cubierta permite que la luz blanca del norte bañe de lado a lado la sala principal, asegurando una correcta iluminación de los puntos más apartados del perímetro.



Cliente Client
Universidad Rovira i Virgili
Arquitectos Architects
José Antonio Martínez Lapeña, Elías Torres
Colaboradores Collaborators
A. Armental, P. Badía, J. M. Ballesteros, G. Bosch, S. Felipe, E. Fossati, M. García-Durán, L. Jiménez, I. López, S. Martínez, N. Millán, L. Morao, E. Puig, F. Vizoso; J. Valero (aparejador quantity surveyor)
Consultores Consultants
Miguel Portell (instalaciones mechanical engineering); Manuel Arguijo (estructura structure)
Contratista Contractor
Necso
Fotos Photos
Lourdes Jansana