Biblioteca Central de Seattle, Seattle
OMA - Office for Metropolitan Architecture- Tipo Cultura / Ocio Biblioteca
- Fecha 1999 - 2004
- Ciudad Seattle
- País Estados Unidos
- Fotografía Christian Richters Philippe Ruault Iwan Baan
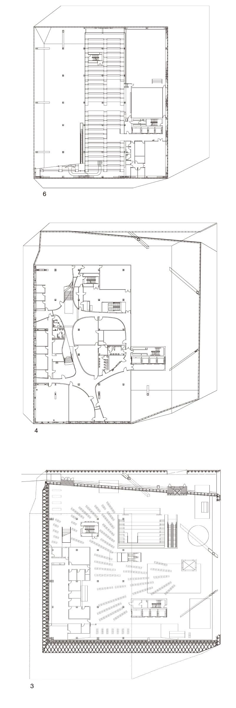
Dentro de un plan municipal para ampliar y modernizar la red pública de centros de lectura, el proyecto decide apostar por una redefinición del concepto de archivo, creando un espacio cívico para la circulación del conocimiento en todos los medios, donde los nuevos formatos se presentan al mismo nivel de importancia que los más tradicionales —libros, periódicos o revistas—, y un sistema de organización innovador para la cada vez mayor colección física: la Espiral de Libros.
El edificio se organiza en cinco plataformas superpuestas y desplazadas que acogen distintas zonas divididas según su uso, dejando entre sí ámbitos abiertos de consulta y lectura. La mixing chamber, en la tercera planta, es el lugar donde los bibliotecarios pueden atender a los lectores sin quebrar el silencio de las salas. Se cierra el conjunto con una fachada de perfil siempre cambiante, que se pliega como en un ejercicio de papiroflexia para adaptarse al desplazamiento de cada uno de los forjados. En una reinterpretación del rascacielos norteamericano, se ha modificado genéticamente la superposición de plantas y el resultado es un edificio sensual (el interior se ilumina con la luz natural), contextual (cada costado reacciona de forma distinta al entorno urbano) e icónico.
































Cliente Client
The Seattle Public Library
Arquitectos Architects
OMA / LMN – A Joint Venture
Engineer: Arup / Magnusson Klemencic Associates. Principals: Rem Koolhaas and Joshua Prince-Ramus (Partner in Charge). Project Architects: Meghan Corwin, Mark von Hof-Zogrotzki, Bjarke Ingels, Carol Patterson, Natasha Sandmeier. Team: Keely Colcleugh, Rachel Doherty, Sarah Gibson, Laura Gilmore, Anna Little, John McMorrough, Kate Orff, Beat Schenk, Saskia Simon, Anna Sutor, Victoria Willocks, Dan Wood with Florence Clausel, Thomas Dubuisson, Chris van Duijn, Erez Ella, Achim Gergen, Eveline Jürgens, Antti Lassila, Hannes Peer, João Costa Ribeiro, Kristina Skoogh, Sybille Waeltli, Leonard Weil, Ali Arvanaghi. Local Architect: LMN Architects. Partner in charge: John Nesholm. Project Directors: Robert Zimmer, Sam Miller. Project Architects: Tim Pfeiffer, Steve DelFraino, Mary Anne Smith, Dave Matthews, Vern Cooley, Pragnesh Parikh. Team: Chris Baxter, Jim Brown, Wayne Flood, Thomas Gerard, Mette Greenshields, Cassandra Hryniw, Roy Kim, Ed Kranick, Ken Loddeke, Howard Liu, Damien McBride, Howard Meeks, Byron Rice, Kathy Stallings, Page Swanberg
Colaboradores Collaborators
Structural: Arup / Cecil Balmond, Atila Zekioglu, Anders Carlson, Chris Carroll. MEP: Alistair Guthrie, Bruce McKinlay, Stephen Jolly, John Gautrey, Aung Oo, Vahik Davoudi, Amanda Brownlee, Russell Fortmeyer, Tony Cocea, Marina Solovchuk, Fiona Cousins, Christin Whitco. Fire: Armin Wolski, Jim Quiter. IT&A/V: Jonathan Phillips, Raymond Tam, Eric Lockwood, Menandro Domingo. Magnusson Klemencic Associates: Structural: Jon Magnusson, Jay Taylor, Derek Beaman, Hans Blomgren, Nathalie Boeholt. Civil: Drew Gagnes, Darin Stephens. Acoustics: Michael Yantis Associates – Michael Yantis, Basel Jurdy. ADA: McGuire Associates – Kevin McGuire Artists: Ann Hamilton, Gary Hill, Tony Oursler. Cost: Davis Langdon Adamson – Steve Kelly, David Hudd, Alice Nguyen. Environmental Graphics: Bruce Mau Design. Facades: Dewhurst Macfarlane & Partners – Marc Simmons, Yu-Ting Chen. Facade Pre-construction Services: Seele GmbH – Gerhard Seele, Siegfried Gossner, Thomas Geissler, Martin Kugler, Jenniffer Endress. Hardware: Gordon Adams Consulting – Gordon Adams. Interiors: OMA / LMN, Inside Outside: Petra Blaisse, Marieke van den Heuvel, Mathias Lehner, Lieuwe Conradie, Peter Niessen, Jaap de Vries, Maarten van Severen. Landscape: Inside Outside / Jones & Jones – Ilze Jones, Jim Brighton, Shaney Clemmons. Lighting: Kugler Till otson Associates – Suzan Tillotson, Wai Mun Chui. Pre-construction Services: Hoffman Construction Washington – Doug Winn, Bob Vincent, Dale Stenning. Vertical Transport: HKA Elevator Consulting – Daryl Anderson
Programa Program
Total 38,300 m²
Presupuesto Budget
€ 100.7 million
Fotos Photos
Christian Richters; Philippe Ruault; Iwan Baan