Ayuntamiento, S. Fdo. de Henares
Sancho-Madridejos- Tipo Institucional Ayuntamiento / Gubernamental
- Material Terrazo
- Fecha 1995 - 1999
- Ciudad San Fernando de Henares (Madrid)
- País España
- Fotografía Eduardo Sánchez Ángel Baltanás
Contagiada quizá por el crecimiento que Madrid ha experimentado en todo su frente este a lo largo de los últimos años, la localidad de San Fernando de Henares está conociendo un impulso sin precedentes en su actividad edilicia. Como símbolo de este despegue, las autoridades municipales decidieron rehabilitar para sede del consistorio el edificio en ruinas de la antigua Real Fábrica de Paños, levantada en 1746 y atribuida al arquitecto Pedro Ribera. Además de recuperar una pieza clave de su patrimonio histórico, la elección de este lugar como representación oficial del municipio pretendía revitalizar una zona especialmente degradada de San Fernando, actualmente utilizada como vertedero de residuos por las industrias circundantes.


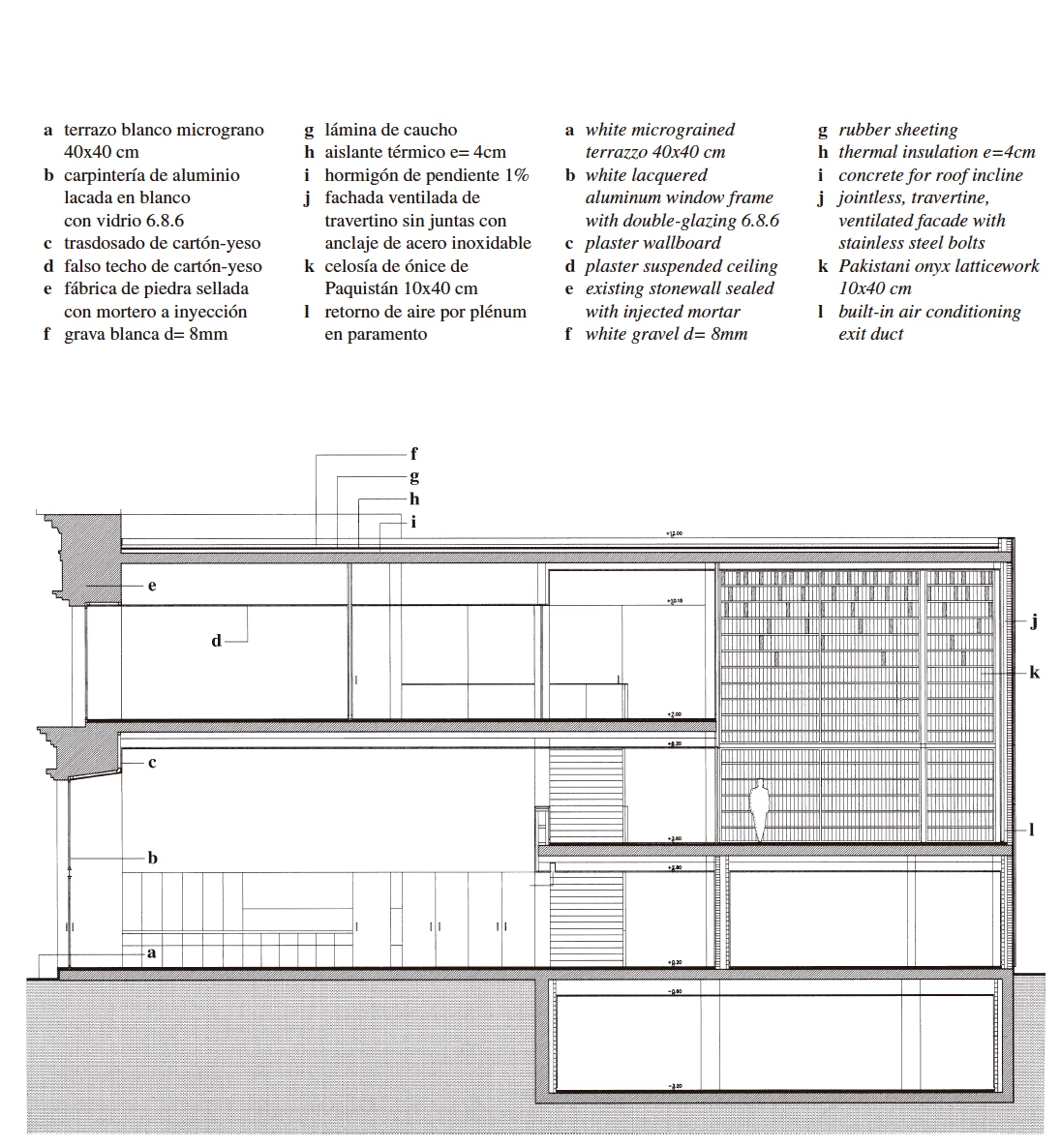
Separado por un espacio longitudinal de los restos de la Real Fábrica de Paños, el prisma del ayuntamiento se perfora con un vacío adicional para iluminar el vestíbulo del salón de plenos con un lienzo de ónice y vidrio.

De la construcción dieciochesca tan sólo quedaban en pie parte de las alas norte y sur de la fachada principal y el cuerpo central que sobresalía ligeramente de ella. La nueva intervención propone situar tras este telón pétreo un prisma de 112x18x12 metros, extrusión directa de la traza de la antigua fábrica. Un vacío longitudinal que recorre toda la altura define una suerte de fachada interior, vertebrando este complejo cívico. La grieta —iluminada al ritmo regular de las ventanas existentes— hila en un recorrido lineal la secuencia de espacios singulares (el salón de plenos, su vestíbulo y la sala de recepciones oficiales) además de contribuir a la orientación del usuario en los pasillos de acceso a la inevitable sucesión de despachos. Otros vacíos menores caracterizan partes concretas del edificio, separando unidades funcionales; así sucede con el patio interior que segrega los aseos de las oficinas con el volumen extraído entre el vestíbulo del salón de plenos y la sala de recepciones, que define con sus sombras el alzado posterior.

El programa —que incluye un centro cívico y una comisaría, además del ayuntamiento— se distribuye siguiendo una estratificación de usos. La planta baja alberga al sur las dependencias policiales —con acceso propio— así como las aulas y la sala de exposiciones que constituyen el centro cívico, reservando su ala norte a la parte administrativa más frecuentada por el público. El nivel intermedio está dedicado a los departamentos técnicos y da acceso al salón de plenos a través de un vestíbulo cerrado por paños de ónice. Este retablo translúcido incorpora piezas de vidrio a ritmo irregular, proyectando un mosaico alterno de luz y penumbra sobre la escalera principal. En el último piso, el alcalde ocupa el cuerpo central, en una posición fácilmente identificable por todos los ciudadanos.







Sancho-Madridejos
Cliente Client
Ayuntamiento de San Fernando de Henares
Arquitectos Architects
Juan Carlos Sancho, Sol Madridejos
Colaboradores Collaborators
Ángel Alonso, Antón García-Abril, Marta Peña, Patricia Planell, Juan Antonio Garrido
Contratista Contractor
Fomento de Construcciones y Contratas
Fotos Photos
Eduardo Sánchez & Ángel Baltanás