Ampliación de la destilería Glenmorangie en Tain
Barthélémy Griño- Tipo Industria
- Fecha 2024
- Ciudad Tain (Escocia)
- País Reino Unido
- Fotografía Hélène Binet
El estudio con sede en París, dirigido por el francés Philippe Barthélémy y la uruguaya Sylvia Griño, resultó ganador del concurso convocado en 2016 para ampliar la destilería Glenmorangie, situada en Tain, en las Highlands escocesas.
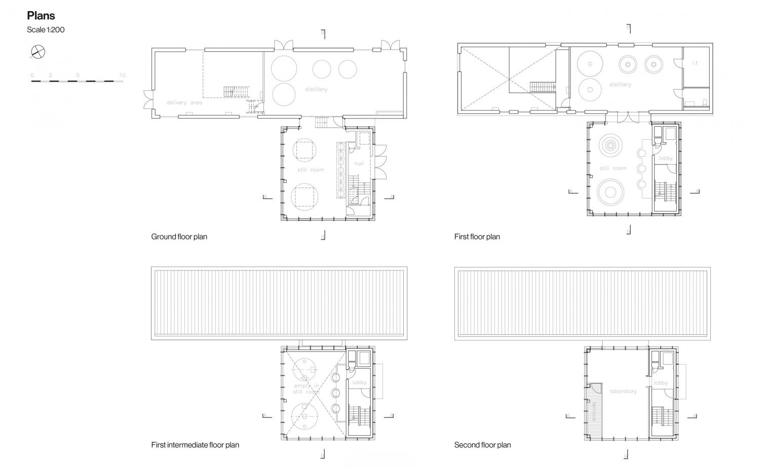
Los dos nuevos edificios industriales han transformado la imagen del lugar. Uniendo tradición y modernidad, los dos volúmenes interconectados se integran en el paisaje de la destilería de whisky fundada en 1843. El más imponente de ellos, que alcanza los 20 metros de altura, está inspirado en los antiguos faros que guiaban a los barcos en el estuario de Dornoch Firth. Esta torre vidriada alberga los dos alambiques más grandes de Escocia, además de un laboratorio de creación y degustación, ubicado en el nivel superior, que disfruta de impresionantes vistas sobre el mar del Norte. En su interior, los paneles de madera evocan las barricas donde envejece el whisky.
Una construcción de menor altura complementa las nuevas instalaciones, conectándose con los edificios originales mediante un revestimiento pétreo. La ampliación se alimenta de biogás, generado a partir del proceso de destilación.
El esmero puesto en los detalles de la construcción del ‘faro’ rinde homenaje al excepcional saber hacer de la región, convirtiéndolo en el símbolo de una destilería que es, en sí misma, un referente del whisky escocés.




















