22 viviendas de protección oficial en Viladecans (Barcelona)
AV62 Arquitectos Calderon-Folch Arquitectes- Tipo Vivienda Colectiva Prefabricación
- Fecha 2024
- Ciudad Viladecans (Barcelona)
- País España
- Fotografía José Hevia
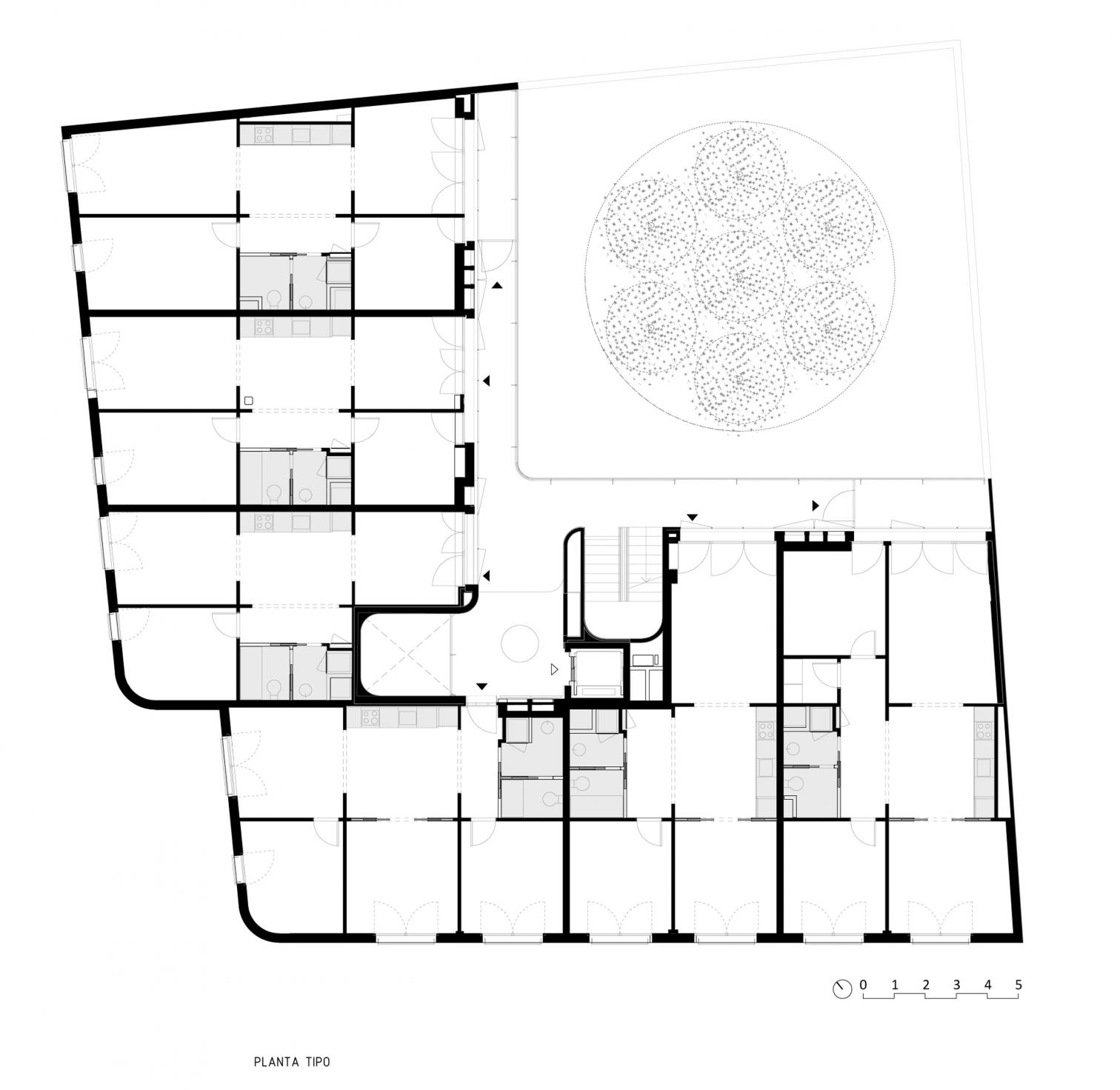
En Viladecans, municipio barcelonés situado en la comarca del Bajo Llobregat, se alza un conjunto residencial de 22 viviendas sociales que se integra de manera orgánica en su entorno. El proyecto se organiza en dos volúmenes —de tres y cinco plantas— unidos por una pasarela que articula una única unidad arquitectónica, adaptada a la geometría en L del solar. Más allá de responder a la morfología urbana, la edificación actúa como elemento de mediación entre dos calles de escala distinta, generando una transición fluida y coherente dentro del tejido urbano.
Las viviendas, cuyas superficies oscilan entre 50 y 80 metros cuadrados, se organizan en torno a un jardín comunitario en planta baja que, junto con una terraza compartida en la tercera planta, fomenta la vida en comunidad. El acceso a las viviendas se realiza a través de pasarelas exteriores que actúan como corredores abiertos, promoviendo la ventilación natural y el contacto social.
Uno de los elementos que definen el proyecto es su estructura prefabricada de losas alveolares de hormigón pretensado. Este sistema permite una planta libre con una distribución flexible gracias a una estructura de grandes luces y un núcleo central de servicios. Esta configuración libera las fachadas, asegurando dobles orientaciones que optimizan la entrada de luz y la ventilación cruzada natural en todas las viviendas.
Desde el punto de vista medioambiental, el sistema constructivo destaca por su eficiencia. Las placas alveolares ranuradas utilizadas permiten reducir en un 25% el peso del forjado y el consumo de hormigón, así como disminuir en un 15% las emisiones de CO₂ en comparación con soluciones convencionales. Además, su peso un 30% menor respecto a las losas postensadas contribuye a una menor demanda estructural.
La elección de componentes prefabricados no solo acelera la ejecución del proyecto, sino que también reduce significativamente su huella ecológica. La industrialización del proceso minimiza residuos, consumo de agua y emisiones asociadas a la construcción tradicional, constituyendo un modelo eficaz ante la actual emergencia habitacional.


















