077 Casa alrededor de una chimenea en Amarante
fala- Tipo Vivienda Casa Rehabilitación
- Fecha 2020
- Ciudad Amarante
- País Portugal
- Fotografía Ivo Tavares Studio
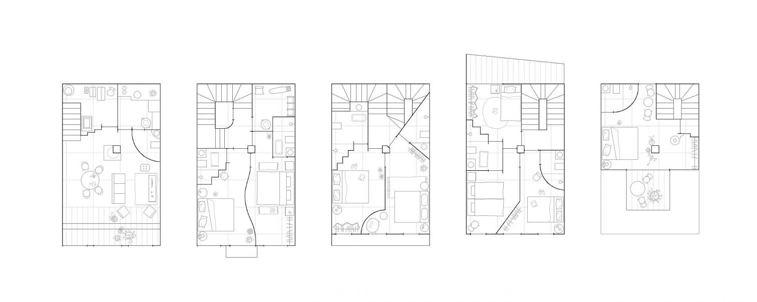
La remodelación busca ser respetuosa con el edificio que presenta una fachada principal protegida, resultado de la superposición vertical de diferentes ampliaciones que funcionan bien juntas. La fachada trasera, menos cuidada, emerge con dos alturas.
La casa está organizada en torno a la chimenea de hormigón que atraviesa todos los niveles. Con la misma paleta de materiales, las estancias incorporan elementos de granito y mármol entre paredes quebradas y puertas de tonos verdosos, que generan improvisadas composiciones espaciales.



















077 House Around a Chimney
Architects
fala / Filipe Magalhães, Ana Luisa Soares, Ahmed Belkhodja, Lera Samovich, Joana Sendas (team).
Consultants
Paulo Sousa (engineering).
Contractor
RBT.
Budget
280.000 €.
Area
225 m².
Photos
Ivo Tavares, fala