La Casa Ricarda de El Prat, declarada Bien Cultural de Interés Nacional

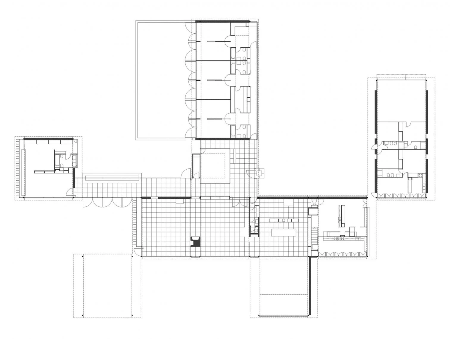
El Govern de la Generalitat de Catalunya ha acordado declarar Bien Cultural de Interés Nacional en la categoría de monumento histórico a la Casa Gomis de El Prat de Llobregat, conocida popularmente como La Ricarda, obra de Antoni Bonet Castellana, miembro del Grupo de Arquitectos y Técnicos para el Progreso de la Arquitectura Contemporánea y destacada figura de la arquitectura racionalista y del Movimiento Moderno.
La declaración también incluye la protección de distintos muebles que forman parte de este edificio, situado en el espacio natural protegido de La Ricarda, el último reducto virgen del delta del Llobregat. Es precisamente por este enclave por donde Aena planea ampliar el aeropuerto de El Prat...
La Vanguardia: La Casa Gomis de El Prat es declarada Bien Cultural de Interés Nacional





