
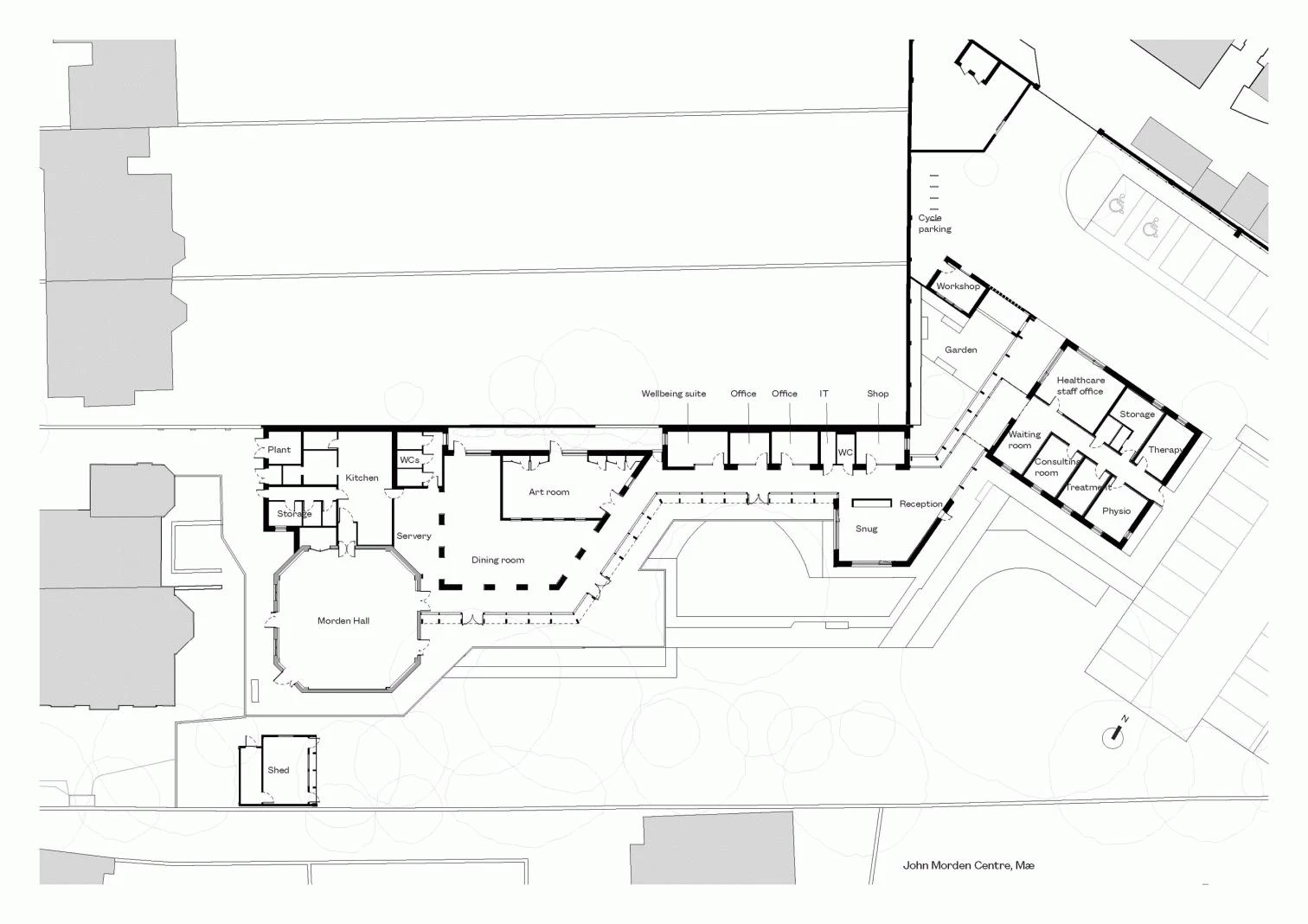
The Royal Institute of British Architects (RIBA) has awarded its Stirling Prize to the John Morden Centre in London, a work of Mae Architects. The accolade is recognition for the best works built in the United Kingdom. This senior daycare is part of a complex of listed buildings at Morden College, which harbors a community of elderly people. Founded in 1695, Morden College is located in Southeast London. The new construction evokes the layers of the history of the place by introducing elements of the architecture existing around, interpreting them in a contemporary language and using materials like reddish-toned bricks and cross-laminated timber (CLT). A garden courtyard with clear references to Morden College’s cloisters provides an interior passageway that interweaves the different facilities along its course.
Centro John Morden en Londres, del estudio Mae Architects




